Pécs - Eladó Lakás
Mecsekoldal
91 m2
114.900.000 Ft
333888
Új építésű ingatlan a Mecsekoldalon
Leírás
Modern, új építésű lakás eladó Pécs egyik legkedveltebb részén, a Mecsekoldalban!
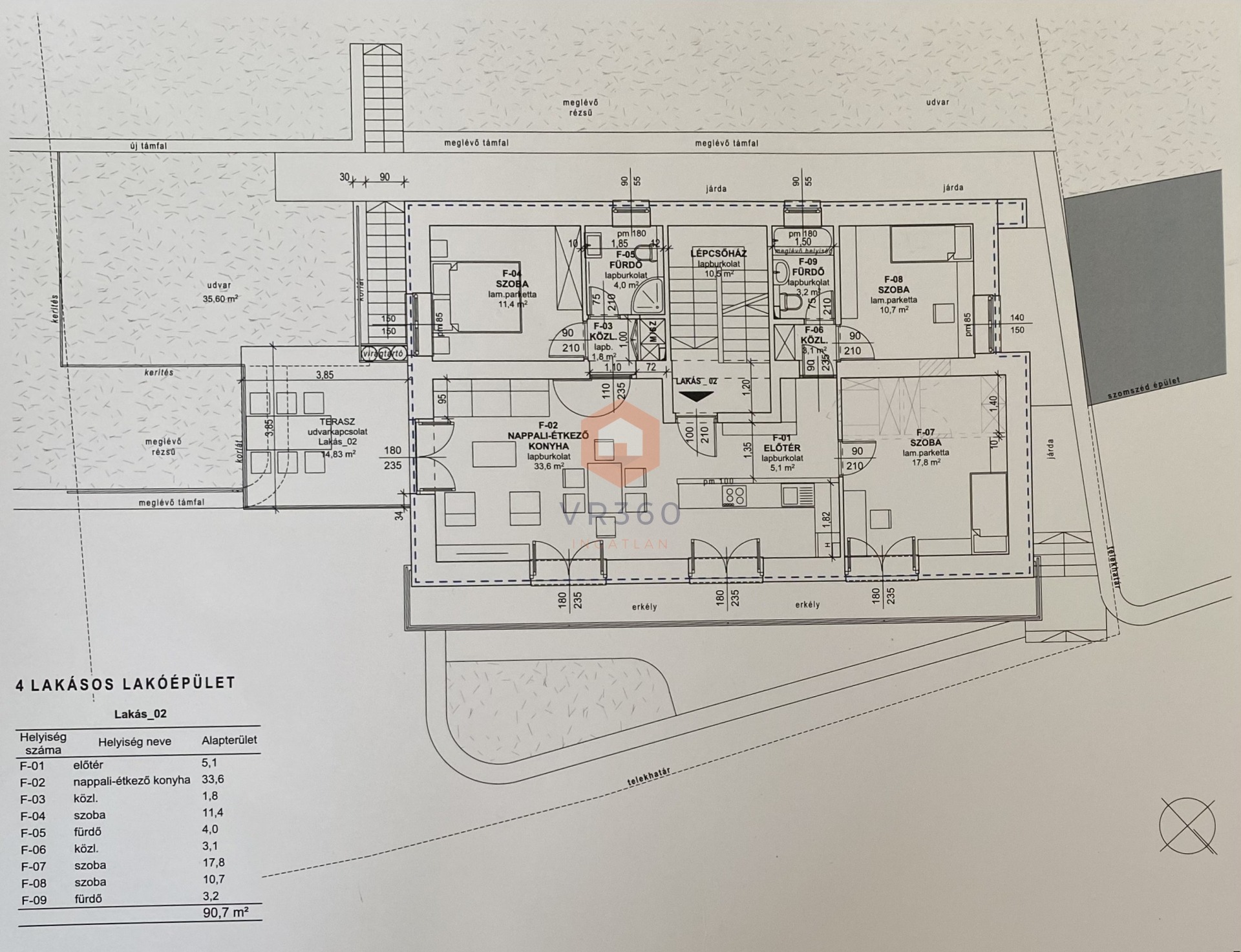
Eladó egy 91 m²-es, nappali + 3 hálószobás, exkluzív téglalakás a Mecsekoldal csendes, zöldövezeti részén, a Dömörkapu szomszédságában.
Az ingatlan egy 2024-ben átadott, mindössze 4 lakásos társasház első emeletén található, egy zsákutca végén, így garantált a nyugalom és a zavartalan pihenés.
Elrendezése:
- tágas amerikai konyhás nappali
- 3 külön nyíló hálószoba
- 2 fürdőszoba (az egyik káddal, a másik zuhanyzóval)
- 3 m²-es tároló
- 14 m²-es erkély
- 15 m²-es terasz
A teraszhoz egy 35 m²-es kertrész is tartozik.
Műszaki tartalom:
A+ energiahatékonysági besorolás
A lakás kiváló minőségű anyagok felhasználásával, igényes kivitelezéssel készült, korszerű nyílászárókkal, hőszivattyús padlófűtéssel, egyedi mérőórákkal, légkondicionáló berendezéssel és napelemekkel felszerelve, amelyek tovább növelik az energiahatékonyságot. A fürdőszobák modern, minőségi burkolatokkal és elegáns szaniterekkel kerültek kialakításra.
A lakáshoz egy utcai parkolóhely is tartozik.
Elhelyezkedése és adottságai miatt kiváló választás fiatal pároknak, idősebbeknek vagy akár befektetési célra is!
Ha felkeltette érdeklődését ez a kivételes lehetőség, keressen bizalommal!
Kapcsolati adatok
Érdeklődjön az ingatlanról, e-mailben!
Hasonló ingatlanok
Pécs (Egyetemváros), Szigeti út
Akadálymentesített, 48 m2-es , 2 szobás, teraszos lakás Pécs Egy...
Pécs (Belváros), Hőgyes Endre utca
Új építésű téglalakás Pécsett a Hőgyes Endre utcában
Pécs (Belváros), Felsőmalom utca
FELSŐMALOM UTCÁBAN NAPPALI+2 HÁLÓS FELÚJÍTOTT LAKÁS AUTÓBEÁLLÓVA...